Project Details
Hello, I am Pilseung Jeong, assistant manager of RS Korea's technical sales department. Looking back, my first introduction was Pilseung Jeong of RS Korea, depending on my mood that day. This is Pilseung Jeong, assistant manager of RS Korea’s technical sales department. It is also said that. I don't know what the difference is, but it feels like a medieval European nobleman reciting his title and middle name one after another. Blogs are powerful. If you have something you want to publicize, write a blog. YouTube or TikTok are also good. https://blog.naver.com/rs-korea1/222618976140
Today's installation issue was also influenced by the last blog. This is a case where environmental measuring instruments were installed at an animal crematorium in Namyangju, and an inquiry was received from a company in the same industry. As it was a solemn space, I visited with caution rather than joy. The site is an animal crematorium called 21GRAM, located in Namyangju, the same as the case above. The concept of 21 grams came from the results of an experiment conducted by doctor Dunkal MacDougall in 1907, and began with the hypothesis of how much the soul weighs, if any. In other words, calculating the weight of the patient before death - the weight of the deceased immediately after death is the weight of the soul. So the conclusion was that the soul weighs 21 grams, but of course there is no scientific basis for this. This is the name of a company that cremates pets and leaves a lasting impression on their remaining souls. There was a movie with the same name, but it doesn't seem to have been a huge hit in Korea.


When I tried to take a picture of the business while covering the car's license plate, the photo came out with a very poor structure. If you are planning to visit for animal cremation after seeing this photo, don't worry. It is a pretty and cozy space like a cafe. After a brief meeting at the office, we decided to take a look around the site. 21GRAM also operates funeral homes in Gwangju, Gyeonggi-do and Asan, Cheonan. Among them, only the Namyangju business was contacted, so it seems to be due to Namyangju City's own ordinance.




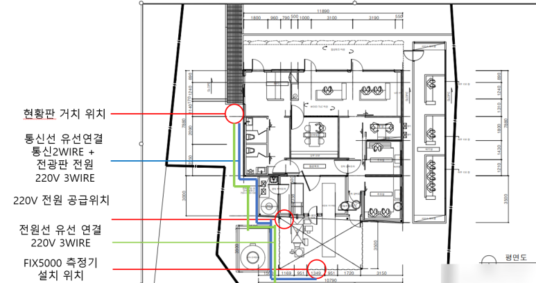
There is an incinerator behind the lobby. I feel a bit sorry for using the term incinerator as an incinerator. We also check a flat space for installing stand-alone products, as well as passageways for status boards and wired connections. After completing the due diligence and adjusting the details, we return to the office.


As expected, cremation facilities are strongly opposed by residents. It reminds me of NOT IN MY BACK YARD, which I learned in elementary school. I think everyone remembers the NIMBY PIMFY phenomenon. These are words we learn as examples of regional egoism, but I think there are complicated circumstances in criticizing them with the word egoism. I will speak less. So now I would like to introduce it to you. The product to be installed this time is FIX-5000, an installable complex environmental analysis equipment that can measure gas and atmospheric environment simultaneously. Detailed specifications can be found at the link below. https://www.wandi.co.kr/main/page.html?pid=1046 gas sensor slots and 6 environmental measuring slots allow you to select desired items such as fine dust, temperature, humidity, wind speed, wind direction, illuminance, barometric pressure, and rainfall as well as gases in the atmosphere at the same time. It is a model that can be measured.


A construction plan is drawn up and shared based on the drawings provided by the company. Fast progress was possible because the product was pre-ordered before the meeting.




There is a sagging fence that wasn't there during the actual inspection. I don't think it will be a variable during the installation work. Because the length is known in advance, the wire work is done on a flat surface. Attach a hi-box so that the 220V power can be branched to the measuring instrument and status board.




Because it is a space where workers can move around, the lines were fixed so that they would not cause obstruction. The work is easier if you use existing facilities such as pipes.

grave



Anchor work is performed at a designated location to erect a self-supporting pole and place the product on it. Simply install a white leaf table for measuring fine dust at the top and you are done. Test drive is also not forgotten. The next task is to work on the status board. As construction of an external terrace was scheduled, a portable production was requested. We always find a way. Because there is a similar case




Prepare a tripod stand that fits the bracket for the status board, assemble it, and ensure balance. This is a slightly different type of product from FIX-DS, which has often appeared in our installation cases.

This is a FIX-I product, a multi-functional monitoring status board that allows you to create as many slideshows as you like, display measurement values and write down other information. Depending on the option, 64 channels of information and a 64-page slideshow can be configured, and this model can display not only measurement values but also various information using full color. This concludes today’s post on the completion of installation. I will conclude by summarizing the contents below. There is a cookie photo, not a cookie video, at the bottom of the blog. ------------------------------------------------------------------------------- Project name: Animal crematorium exhaust gas and atmospheric environment analysis equipment Installation site: 21GRAM, Namyangju, Gyeonggi-do Installation product: FIX5000, an installation-type complex environmental analysis equipment and full-color status board for outdoor use FIX-I Remarks: Movable, self-supporting tripod Number of workers: 2 people Working time approximately 4 hours Remarks: Separate installation after the company starts business Commissioning support---------------------------------------------------------------------------------------------

Gas meters and various environmental measuring instruments

For inquiries about product demo installation, please contact us using the business card above during weekday working hours. #Air environment measurement #emission gas measurement #exhaust gas measurement #environment measurement #fine dust measurement #air quality measurement #gas measurement #confined space gas


Oh my, it's my job